AQUILA-IMMO Agence
Télécharger la fiche
Exclusivité Nouveauté

Local professionnel 6 pièce(s) 147 m²

Saint-Étienne (42000)
1 645 € / mois NAT - HC* * Hors charges * NAT : Non assujetti à TVA Référence ALLCO80000297

A propos de ce bien

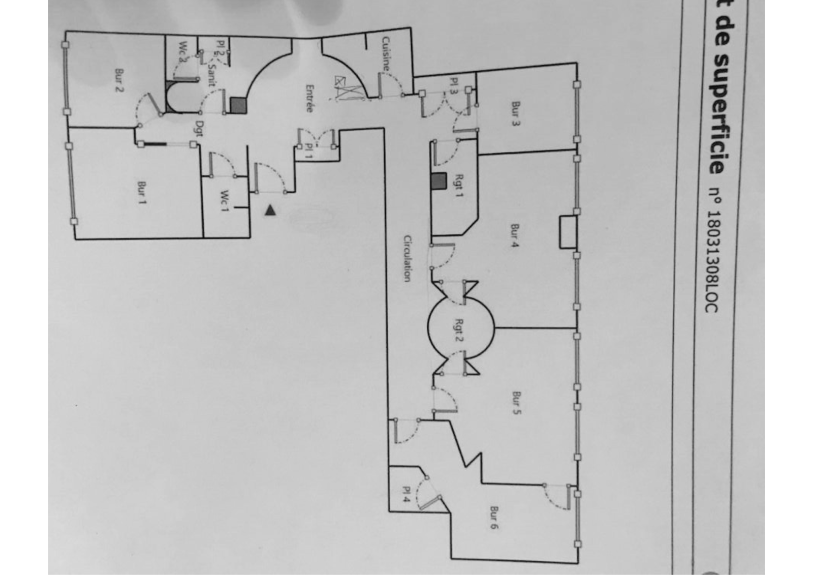
Aquila Immobilier ( 0622079782 / 04 77 56 93 18) vous propose en exclusivité à la location des bureaux quartier Bergson ces bureaux à usage professionnel refaits à neuf composés de six bureaux, accueil, deux sanitaires au cœur du quartier de Bergson à Saint Etienne. Leurs atouts : une situation géographique idéale, des bureaux spacieux, accessibles et adaptés aux personnes à mobilité réduite, facilité de stationnement.

Bureau n°1 (12,76 m2) ;
Bureau n°2 (8,7 m2) ;
Bureau n°3 (7,20 m2) ;
Bureau n°4 (20,62 m2) ;
Bureau n°5 (17,36 m2) ;
Bureau n°6 (14,39 m2)

Équipé de kitchenettes avec lavabos, placards de rangement fermant à clé, espace d’accueil, salle d’attente, l’espace qui vous est proposé se prête tout à fait à la réception d’une patientèle ou d’une clientèle.
Vous vous situez dans un immeuble de standing, l’Europa, qui comprend déjà un cabinet dentaire, une agence d'intérim, des bureaux professionnels, cabinet d'assurance etc.

Anciennement occupés par un cabinet dentaire, ces locaux sont IDÉAUX POUR LES PROFESSIONS LIBÉRALES, CABINETS MÉDICAUX, PROFESSIONNELS DE SANTÉ : kinésithérapeutes, psychiatres, psychologues, orthoptistes, orthophonistes, ophtalmologues, sages-femmes, diététiciens, nutritionnistes, architectes, notaires, comptables…

L’emplacement est idéal : à proximité immédiate du supermarché Intermarché, du Siège social du Crédit Agricole, du Technopole et du Zénith.

Accès facile aux transports en commun : au pied de l'arrêt de tram Chaléassière ligne T1 qui traverse Saint-Etienne du Nord au Sud, de l’Hôpital Nord à Solaure, et à seulement 1 arrêt de la Cité du Design et de la ligne T2 qui dessert la gare de Châteaucreux. En voiture, vous ralliez l’A72 en 5 minutes par le boulevard Thiers jusqu’à la sortie 12 de La Terrasse.

Plusieurs possibilités s’offrent à vous :

  • Possibilité location bureau à l'unité :

  • Location partielle au nombre de bureaux

  • Location de la surface totale 147 m2 environ. 1665 EUROS HT/MOIS ET Hors charges de copropriété.

  • TF 2800/AN ENVIRON A CHARGE ACQUÉREUR

  • DPE 206 GES 14 (AK0059 LOT85)

Nous contacter pour les tarifs et d’avantage d'informations. 0627268888

Caractéristiques de ce bien

Activités

  • Type de transaction Local professionnel

Agencement

  • Superficie m2 147 m²
  • Exposition Est-Ouest
  • Nombre de pièces 6

Equipements

  • Chauffage individuel : radiateur (electrique) individuel : convecteur (electrique)

Secteur

  • Code postal 42000
  • Ville Saint-Étienne
  • Quartier BERGSON

Diagnostics & compléments

  • Année de construction 1970

Diagnostics énergétiques

Consommation énergétique
A B C D E F G
Emission de gaz à effet de serre
A B C D E F G
DPE ANCIENNE VERSION

Informations financières

Loyer 1 645 € / mois
Dont état des lieux Non renseigné
Dépot de garantie Non renseigné
Taxe foncière annuelle 2 800 €