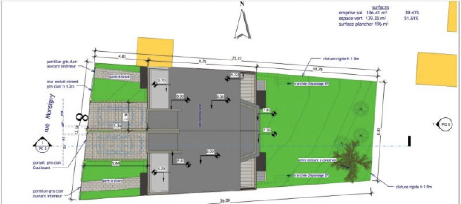
Terrain 270 m² 270 m²
Vitry-sur-Seine (94400)A propos de ce bien
Aquila immobilier 0622079782 vous propose un Terrain à Viitry sur Seine 94400 avec permis de construire. 5 minutes de la porte de Choisy et la ville de Paris
A proximité de Villejuif, le Kremlin-Bicêtre dans une zône de pavillons: priximité des hopitaux , des écoles, de la Mairie etc...
Le terrain est desservi par le Tramway N° 9 et le métro N°15.
Possibilité de construire deux maisons jumlées avec 104 M² chacune, ou es appartements R+2 en investissement.
Affaire à saisir
CONTACT AQUILA IMMOBILIER.
La présente annonce immobilière a été rédigée sous la responsabilité éditoriale de l'agence Aquila immobilier, (RCS 88086585200011) du Tribunal de Commerce de SAINT ETIENNE. Les honoraires sont à la charge du vendeur. Retrouver toutes nos annonces sur aquila-immo.com - Annonce rédigée et publiée PAR AQUILA I MMOBILIER - Barème: https://www.aquila-immo.com/i/redac/honoraires
Caractéristiques de ce bien
- terrain 270 m²
- exposition Est-Ouest
